€ 220.000
- 5
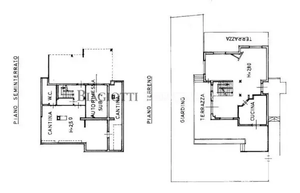
- 110 m2
- 2
- 1
Venezia: in bellissimo palazzo d'epoca, nel cuore della venezia, primo piano con ascensore, in fase di completa ristrutturazione. Ingresso, cucina abitabile con balcone, antibagno e bagno con grande doccia, salone, due camere matrimoniali con soffitti altissimi, altro bagno con finestra e ripostiglio aereo.Cl. In fase...


























































































































































































































































